Whirlpool descrizione Astral IBERSPA Whirlpool JACUZZI Whirlpool COAST SPAS Whirlpool JAZZI Whirlpool Acciaio Inox SWIM TRIM Galleria immagini WHIRLPOOL

 

 

Vi rallegriamo tutto l’anno con l’offerta delle piscine idromassaggio dei prezzi molto convenienti.

Chiamateci per più informazioni e non obbligatoriamente Vi invieremo dei pieghevoli e listini prezzi.

 

 

In passato le persone si immergevano dentro delle tinozze in legno nelle quali scaldavano l'acqua.  

La tinozza in legno chiamata VIKING POOL viene ancora usata dai popoli nordici che ne fanno uso come un momento di socializzazione.

 

Nota: VIKING POOL con la stufa a legna

 

Oggi la tecnologia delle piccole piscine idromassaggio della serie Whirlpool ( soprattutto quelle autonome che vengono consegnate in un pezzo) è stata sviluppata fino ai minimi particolari.

Cosi quelle non ci sono più solo le semplici tinozze in legno o le normali vasche da bagno munite di sistemi di massaggio, senza il riscaldamento e senza il sistema per la depurazione dell'acqua. Produzione e vendita sono di massa e l’offerta è ampia.

Le vasche idromassaggio moderne sono munite del sistema di filtrazione dell'acqua, della caldaia per il riscaldamento, di più tipi di massaggio (per il funzionamento di essi sono necessarie 2-3 pompe ad acqua da 1,5 fino a 3 KM, solitamente anche una pompa ad aria). Spesso sono munite anche di un sistema di comando automatico per il funzionamento di tutti gli accessori con la protezione necessaria, con i fari subacquei, ozonatore per la disinfezione, ecc ...

Tutte queste caratteristiche differenziano una comune vasca da bagno munita di sistema da massaggio, che viene riempita d’acqua all’occorrenza, e un WHIRLPOOL, che è sempre pronto per l’uso.

whirlpool1.jpg (14746 bytes)

 

La maggioranza dei WHIRLPOOL (soprattutto quelli autonomi), l’offerta dei quali oggi è veramente ampia, deve essere solo allacciata alla corrente elettrica e non servono i lavori di muratura. Esistono però anche dei modelli che devono essere montati. In questi casi l'equipaggiamento viene scelto dal compratore al quale viene sottoposta un’offerta a parte che tiene conto di tutti i suoi desideri e necessita.

 

WHIRLPOOL con la canalina di sfioro

(modello PARIZ)

Invece di riadattare l’equipaggiamento originale sul Whirlpool, si può acquistare scocca nuda per il Whirlpool ed equipaggiarla sui vostri desideri e possibilità.

 

La parte di sotto del WHIRLPOOL è posizionata su un piedistallo di cemento

Normalmente la vasca cosi viene installata in un locale speciale (cantina-sala macchine), per assicurare facile accesso “dal sotto” in casi di riparazioni.

Filtrazione del  Whirlpool nel locale sotto il WHIRLPOOL

Il gruppo filtrazione, le pompe per i massaggi, il sistema per la disinfezione e ai Whirlpool con la canalina di sfioro anche la “vasca di compenso” sono anche posizionati nello stesso locale.

 

Il massaggio può essere anche un buon complemento alla piscina, perciò potete mettere un Whirlpool a desideri accanto alla piscina.

Esistono dei Whirlpool speciali dove l’acqua viene dal sistema di filtrazione per la piscina, cosi un sistema per filtrazione extra non serve. La temperatura d’acqua nei Whirlpool cosi è la stessa come quella nella piscina.

I Whirlpool cosi vengono soprattutto installati accanto alle piscine esterne che si usano al caldo d’estate. L’acqua dal Whirlpool cosi scorre direttamente nella piscina. Un Whirlpool cosi può stare completamente autonomo e cosi fa una buona impressione estetica alla vostra spiaggia.

Potete invece installare accanto alla piscina oppure accanto il wellness un Whirlpool normale con un sistema filtrante autonomo e con la temperatura d’acqua più alta di quella nella piscina.   

 

Stampa il depliant: Whirlpool accanto alla piscina

 

 

I Whirlpool si differenziano in privati e pubblici; in autonomi e da incasso. Per i materiali in cui sono fatti distinguiamo quelli in acrilico, in poliestere o in cemento armato. La maggioranza dei modelli sono rivestiti in mosaici in vetro, in piastrelle oppure riverniciati con delle speciali vernici.

Oltre ai WHIRLPOOL classici la nostra offerta dispone anche di piscine da massaggio e da nuoto della serie SWIM-TRIM in collaborazione con la ROYAL DOLPHIN. In questo tipo di vasche sono accomunate le caratteristiche del WHIRLPOOL classico e di una piccola piscina da nuoto. Le piscine di questa gamma vengono munite oltre che con gli accessori classici dei whirlpool, anche con un sistema di nuoto contro una forte corrente (nuoto controcorrente, guarda: Componenti della piscina/ Equipaggiamento aggiuntivo/ Sistema di nuoto controcorrente). In questo modo potrete usufruire al massimo della vostra piscina sia per il massaggio che per il nuoto.

refresh2.jpg (15409 bytes)

 

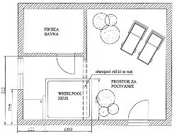
Prima dell'acquisto del vostro WHIRLPOOL vi possiamo proggettare tutto lo spazio circostante alla vostra piscina secondo le vostre necessità includendo anche diversi tipi di saune (turca, finlandese, infra) e di piccole vasche che circonderanno il Whirlpool ...

 

 

WHIRLPOOL

 

 

Altre informazioni: titro@titro.si   Telefono: +386 5 330 96 10,   +386 5 330 96 21

 

ORARIO DI APERTURA:

IN ALTA STAGIONE, tra 1. aprile e 15. settembre: 

durante la settimana:   dalle 7:30 alle 18:00

e il sabato:   dalle 8:00 alle 12:00 

FUORI STAGIONE, tra 16. settembre e 31. marzo: 

durante la settimana:   dalle 7:30 alle 16:00

  Previo accordo è possibile visitarci anche fuori orario, tranne la domenica e giorni festivi.


home page

 (c) TITRO d.o.o.  1999 - 2011. TUTTI DIRITTI D’AUTORE RISERVATI.
USO DEL CONTENUTO O IMMAGINI SOLO CON IL NOSTRO CONSENCO SCRITTO!

Ultima modifica 25. april 2011