bazeni-opis.html

Una domanda frequente che ognuno si pone prima di iniziare la costruzione della piscina è “quanto costa una piscina?”. Ma è impossibile rispondere su questa domanda brevemente e in un modo vigore.   Ci sono troppe le possibilità di costruire una piscina (vedi anche la descrizione nel capitolo PREZZI VALUTAZIONE APPROSSIMATIVA DEL COSTO DI VARI TIPI DI COSTRUZIONE DELLE PISCINE).

Importante è la scelta del tipo di piscina (in cemento, Liner, in poliestere). Hai intenzione di costruire la piscina da solo (vedi PISCINA FAI DA TE) oppure affiderai la costruzione agli esperti (costruttore edile, di piscine, idraulico, elettricista, ecc...). La piscina sarà all'interno o all'esterno, dove collocare il locale tecnico e che dimensioni avrà. Il volume del locale tecnico dipende dalla quantità di accessori che deve contenere (vedi l'intera pagina della TECNICA DELLE PISCINE) e dal tipo di piscina, skimmer o a sfioro. Anche l'aliquota IVA (20 o 8,5 %) influisce moltissimo sul prezzo finale della piscina.

Si deve soprattutto porre alcune domande del punto di partenza e fare una lista dei desideri. Dovete sapere che tipo di piscina farete, che cosa desiderate e volete dalla piscina. Sarà una piscina solo per le calde giornate d’estate o forse volete prolungare la stagione del bagno (vedi COPERTURE TELESCOPICHE PER PISCINE, oppure volete addirittura usare la piscina per la ricreazione d’inverno, ecc…  

Alcuni dati elementari sui quali dovete avere una risposta prima di iniziare la costruzione della piscina:

  • piscina esterna per nuotare d’estate oppure piscina interna per tutto l’anno
  • almeno approssimativi dati del seguente: forma, dimensioni, profondità, e posizione della sala macchine (accanto alla piscina oppure alcuni metri distante)  
  • il sistema di scorrimento d’acqua dalla piscina con gli skimmer oppure con il canale di sfioro
  • tecnologia di costruzione sarà:  piscina costruita di cemento (vedi PISCINE DI CEMENTO), oppure sarà una piscina Liner (vedi LINER BAZENI) oppure volete una piscina di poliestere (vedi PISCINE DI POLIESTERE)
  • quale equipaggiamento desiderate avere nella piscina inoltre il gruppo filtrazione? Illuminazione, massaggi, sistemi per il nuoto controcorrente, coperture telescopiche per piscine, coperture a tapparella, riscaldamento d’acqua,.... (vedi EQUIPAGGIAMENTO AGGIUNTIVO e IL TRATTAMENTO AUTOMATICO DELL’ACQUA)

Ci sono certamente altre domande, come:  si tratta di piscina per l’uso pubblico esclusivamente o parzialmente (pensioni, agriturismi, appartamenti, piccoli alberghi,....) oppure la piscina sarà esclusivamente per l’uso domestico, ecc…

 

I SISTEMI PER LA PULIZIA DELL’ACQUA NELLA PISCINA

Ogni piscina è dotata almeno con un sistema elementare per la filtrazione  (vedi DEPURATORI), per assicurare l’acqua chiara. Questo è il compito del filtro posizionato nella sala macchine. La circolazione d’acqua nella piscina va cosi: l’acqua usata dalla piscina va tolta e dopo restituita pulita. L’acqua viene tolta attraverso gli SKIMMER oppure scorre attraverso il CANALE DI SFIORO nella “vasca compenso«.

PISCINE A SKIMMER 

Gli skimmer sono elementi integrati nella piscina sul bordo del livello d’acqua che tolgono dalla superficie ogni tipo di impurità (come polvere, polline, foglie, insetti, capelli, residui dello smog, ecc…) Alle piscine più piccole basta uno skimmer, ma possono essere anche più. Dipende dalla forma e dimensioni della piscina, velocità del filtraggio, quantità dell’acqua nella piscina, ecc…

Schema del funzionamento della piscina a skimmer. No. 9 indica località  dello skimmer.

 

 

 

 

Esempio: skimmer incassato prima di posizionamento
della membrana PVC nella piscina Liner

         

 

Esempio: gli skimmer nella piscina di poliestere,
si vede il livello d’acqua sopra le aperture degli skimmer
(tra gli skimmer sott’acqua si vede il sistema per il nuoto controcorrente)

 

PISCINE A SFIORO

Tutte quelle piscine che non hanno gli skimmer, appartengono alle piscine a sfioro. Ci sono più tipi di canali di sfioro. Il canale di sfioro può essere presente su tutto o parte del perimetro della piscina. Il canale può essere visibile e coperto con una griglia oppure nascosto. Alle piscine con lo sfioro “verso panorama” il canale di sfioro è nascosto in un posto più basso e non si vede.

Tutte le piscine con il canale di sfioro (piscine a sfioro) hanno accanto la sala macchine anche una “vasca compenso”, che raccoglie tutta l’acqua che cade attraverso il bordo della piscina.

Le piscine con il canale di sfioro e la vasca compenso sono circa 30-50% più care di quelle a skimmer.

 

Schema del funzionamento della piscina a sfioro:

 

 

Piscine a sfioro possono essere costruite cosi che
il bordo della piscina si fonde con
i dintorni »VERSO PANORAMA«

 

           

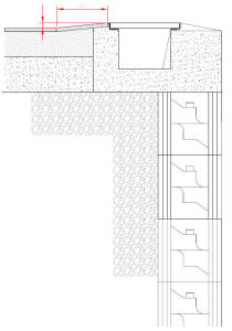
Sezione di canale di sfioro comune intorno alla piscina

 

 

Stampa il depliant: TIPI PIÙ COMUNI DI CANALI DI SFIORO

 

Esempio: piscina interna a sfioro
(accanto anche una piscina idromassaggio a sfioro – whirlpool)

      

Esempio: l’aspetto del canale a sfioro classico con la griglia

    

Esempio: l’aspetto del canale a sfioro "VERSO PANORAMA"

 

 

 

 

Altre informazioni: titro@titro.si   Telefono: +386 5 330 96 10,   +386 5 330 96 21

 

ORARIO DI APERTURA:

IN ALTA STAGIONE, tra 1. aprile e 15. settembre: 

durante la settimana:   dalle 7:30 alle 18:00

e il sabato:   dalle 8:00 alle 12:00 

FUORI STAGIONE, tra 16. settembre e 31. marzo: 

durante la settimana:   dalle 7:30 alle 16:00

  Previo accordo è possibile visitarci anche fuori orario, tranne la domenica e giorni festivi.


home page

 (c) TITRO d.o.o.  1999 - 2011. TUTTI DIRITTI D’AUTORE RISERVATI.
USO DEL CONTENUTO O IMMAGINI SOLO CON IL NOSTRO CONSENCO SCRITTO!

Ultima modifica 25. april 2011